Дом, 117 м2, 5.5 сот., ИЖС
+25 фото
Дом, 117 м2, 5.5 сот., ИЖС
0
Цена за м260 684 ₽
Тип дома блочный
Площадь участка 5.5 сот
Тип участка ИЖС
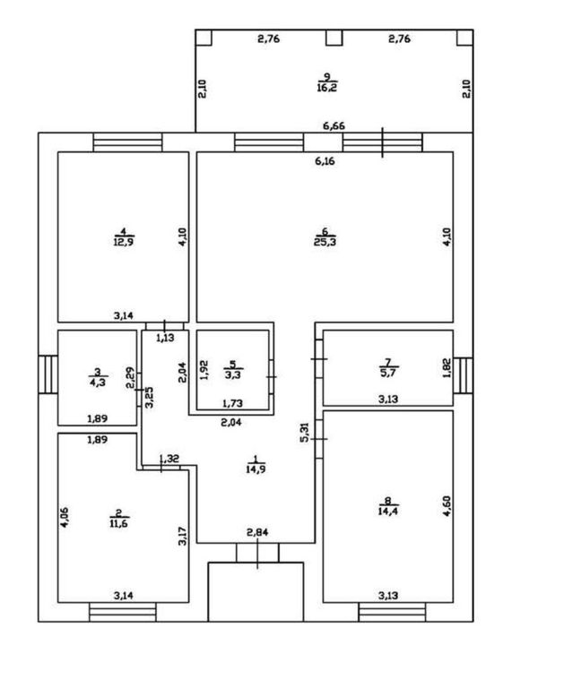
Площадь дома 117 м2
Кол-во комнат 4
Адрес посёлок Соловьёвка, Сказочная, 17
ДОМ ОТ ЗАСТРОЙЩИКА , ДЕЙСТВУЮТ ВСЕ ВИДЫ ИПОТЕКИ . Продам просторный дом площадью 120кв .м. на участке 6 соток в новом развивающемся коттеджном поселке "Соловьевка". Дом с современной продуманной планировкой, большая уютная кухня-гостиная с панорамными окнами и выходом на открытую террасу, 3 спальни, санузел, котельная и бойлерная. ДОМ ПОСТРОЕН ИЗ КАЧЕСТВЕННЫХ МАТЕРИАЛОВ: - Свайно-ленточный фундамент (глубина свай 2 метра, ростверк 60 см), усиленный армопоясом; - Стены: керамзитоблок (евроформат 300мм), утеплитель стен (каменная вата техно николь 10 см), облицовочный кирпич. переложен кладочной сеткой, баварская кладка. Современные энергосберегающие материалы (тепло зимой и комфортно летом); - Крыша: металочерепица; утепление 200мм., пароизоляция между утеплителем, утеплитель в 4 слоя, 20 см, обрешетная доска с гидроизоляцией. Установлены карнизы, коньки, все подшито; - Окна 70 профиль-ламинация в цвет крыши; - Установлен качественный мощный газовый котел 24-киловатт.Система отопления теплый пол, выходы под радиаторы. 
В ДОМЕ ПРЕДЧИСТОВАЯ ОТДЕЛКА, ВСЯ ПЫЛЬНАЯ РАБОТА ВЫПОЛНЕНА, ВАМ ОСТАЕТСЯ ТОЛЬКО СДЕЛАТЬ РЕМОНТ НА СВОЙ ВКУС: - Стены оштукатурены. - Пол – бетонная стяжка по маякам; - Установлена входная дверь с терморазрывом; - В доме полностью разведена электропроводка по ГОСТу. - Водоснабжение за счет собственной скважины 55,5 метров с глубинным насосом и автоматикой (скважина на участке); - Канализация - септик; НЕПОДТОПЛЯЕМОЙ ЗОНЕ !!! 
ВАЖНО!!! Этот дом Вы можете купить по семейной ипотеке со ставкой 6%!!! по сельской ипотеке 3%. 
Поселок в котором есть вся инфраструктура:школа, детский сад, магазины,ФАП,клуб,Ozon,wb.Находится в 5 км от города,напротив п. Подгородняя Покровка. ЗВОНИТЕ! ОТВЕЧУ НА ВСЕ ИНТЕРЕСУЮЩИЕ ВОПРОСЫ. Показать еще
Преимущества
Одобрение ипотеки
Без первоначального взноса
С плохой кредитной историей
С маленьким оф. доходом
Без оф. дохода
Без справок о доходах
Юридическое сопровождение
Проверяем объект недвижимости
Организуем безопасные расчеты
Защищаем от мошеннических сделок
Недвижимость в др. регионах РФ
Возможность переехать в более крупный город
Переезд из-за учебы
Покупка недвижимости в целях заработка и т.д.
7 100 000 ₽
ID: 126972   
Тип сделки: продажа
Заявка успешно отправлена.
ФИО*
Телефон*
Ваш вопрос
ООО "МИЛАНА" для повышения удобства работы с сайтом и персонализации сервисов использует файлы cookie. Продолжая пользоваться нашим сайтом, Вы даете согласие на их обработку. В случае несогласия с обработкой Ваших пользовательских данных, Вы можете запретить сохранение cookie в настройках Вашего браузера.